Start from Tosu.

ここは、DXがはじまる場所。

さぁ、DXをはじめよう。

このコワーキングスペースは、ただの作業場所じゃない。

DXによって変革したい事業会社、
そしてDXを支えたい人が集まる場所だ。

ここでの出会いで、未来のビジネスモデルを形成し、
デジタル時代の新たな価値を創り出す。

この場所に関わる人・会社が大きく変革し、
大空に飛び立つための場所になるように、
私たちは、ネスト(巣)鳥栖と名付けました。

さぁ、ネスト鳥栖から、DXをはじめよう。

#さぁDXをはじめよう
#LetsBeginDX

For Supporter

DXを支えたい人へ

DXを支える人を、
私たちは支援します。

ネスト鳥栖では創業前・創業1年以内の方を対象に、入居後1年間無料で各種創業に関わる相談(マーケティング・財務・法務・人事など)が受けられるだけなく、通常料金よりディスカウントしてコワーキングスペースを利用することができます。DXを支えたいフリーランスのエンジニア・デザイナーや法人様におすすめです。

  • 01.入居後1年間、創業やDXに関わる相談が無料(予約制)
  • 02.20%OFFでコワーキングが利用可能

相談例

起業を検討している、DXを検討している、DX関連(ブランディング、デザイン、マーケティング、BizDev、プログラミングなど)の仕事を探しているなど

Co-Working

コワーキングスペース

全18席。小さすぎず、大きすぎず、会員の顔が分かるミドルサイズのコワーキングです。
ミーティングルームでの打ち合わせも可能(準備中)。
カウンタースペースやコミュニティスペースで、会員同士のコミュニケーションも取りやすい「ちょうど良い」コワーキングスペースです。

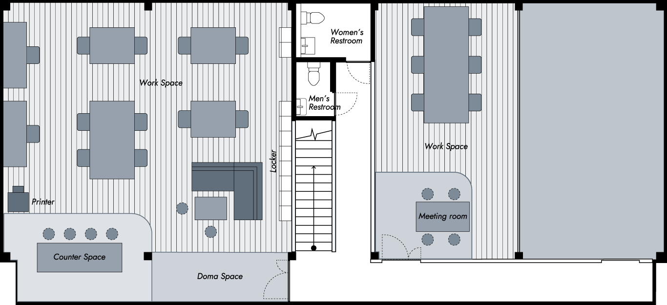
ネスト鳥栖フロアマップ
ワーキングスペース

ワーキングスペース

ワンデスク・ワンチェアを指定アドレスにて使用可能。

カウンタースペース

カウンタースペース

広々としたカウンタースペース。

コミュニティスペース

コミュニティスペース

会員同士でコミュニケーションが取れるスペース。

Wi-Fi完備

Wi-Fi完備

セキュリティカード貸与

セキュリティカード
貸与

ウォーターサーバー無料

ウォーターサーバー
無料

ロッカー・郵便受取無料

ロッカー・郵便受取
無料

プリント・コピー(有料)

プリント・コピー
(有料)

Price

料金

月額料金
【創業前・創業後1年以内】¥20,000(税別)/月 ワンデスク・ワンチェアを指定アドレスにて利用可
入居後、1年間は創業相談可能(予約制)
【創業後1年以上の個人・法人】¥25,000(税別)/月 ワンデスク・ワンチェアを指定アドレスにて利用可
シェアードオプション※法人のみ
【席を組織内のメンバーとシェア】1名追加ごとに¥2,000(税別)/月
ドロップイン
【終日利用(10:00〜18:00)】¥1,200(税別) 【ショート(1時間)】¥500(税別)
FAQ

よくあるご質問

Q入居までの手続きはどのようになっていますか?

A

ご入居前にまず内覧をおすすめします。
入居ご希望の方は問い合わせからご連絡いただき、こちらから入居手続き書をお送りします。ご記入いただき、審査の通過いたしますとご入居いただけます。初回来店時ICカードをお渡しします。

Q郵便物の受け取りはどのような方法でできますか?

A

郵便物はNesXt鳥栖 受付内に保管します。
お受け取り方法は、来店時受取となります。

Q駐車場はありますか?

A

はい、駐車場・駐輪場のご用意はありますが、数に限りがございますので、ご利用の場合は事前に連絡いただけると幸いです。

Qコワーキングの時間利用は可能ですか?

A

はい、平日10:00から18:00まで利用可能です。1時間500円となります。来店時チャイムにてお知らせください。

Qスペース内での飲食物の持ち込みは可能ですか?

A

はい、軽食や飲み物の持ち込みは可能です。ただし、他の利用者へ影響するものはお控えいただいております。※強い臭いを放つものなど

Qスペース内での電話やオンライン会議は可能ですか?

A

はい、電話やオンライン会議は可能です。ただし、他の会員様へ配慮のため、専用のスペースやブースへ移動いただく形となります。

Qコワーキングスペースの最寄りの駅はどこですか?

A

新鳥栖駅:徒歩15分程度
鳥栖駅:徒歩10分程度

Story

誰が?なぜネスト鳥栖を?

新興と再興。
スタートアップ支援・DX支援を通じて、
地域社会を豊かにしたい。

私たち寶結株式会社は、DX支援・スタートアップ支援の2つの軸を中心に事業を展開している会社です。形態変化を求める企業や、新たな産業を創るスタートアップを支援しています。
再興と新興、この2つが重なった時、大きな経済的インパクトを与えることが出来ると考えています。寶結株式会社は、技術を駆使し、地域社会を豊かにしていきます。

大空へ羽ばたくための場所として。

ネストとは、巣(栖)を指す英語。関わる人・会社が変革し、大空に飛び立つための場所として、ネスト鳥栖と名付けました。Xを入れた理由は、DXがはじまる場所でありたい、という思いを込めています。

Azure Blue

クリエイティビティ、永遠の意味を持つ青。Azure(アジュール)とは、英語で空色のこと。創造し、それが永く続いていく思いを表現しています。

Access

アクセス

NesXt TOSU

営業時間
平日 9:00〜24:00
スタッフアワー 10:00〜18:00
住所
〒841-0051
佐賀県鳥栖市元町1336-6 栄ビル2F
支払方法
現金、クレジットカード、各種電子マネー
Contact Us

お問い合わせ

入居お申し込み、求人応募、各種お問い合わせは下記フォームからお願い致します。
送信後、内容を確認して担当者からご連絡致します。
「*」は必須項目です

法人名・事業名
お名前*
メールアドレス*
電話番号
項目*
内容*